
הפקולטה להנדסה - המגמה להנדסה מכאנית
תכנון מערכת מיזוג אוויר לחדרים
נקיים
CLASS 10,000 / M5.5
תקציר מנהלים לפרויקט.
פרויקט גמר לתואר I בהנדסה
מכאנית.
שם המנחה: אינג' יחזקאל
בורנשטיין.
שם הסטודנט:
עידו יוגב.
מספר הפרויקט: 183.
תאריך: 02/06/02
רקע ותיאור הפרויקט.
כחלק מהרחבת היקף
העבודה של מפעל "יוגב אלקטרוניקה"
בפארק התעשייה בחיפה נבנה מבנה תעשייתי קל חדש נוסף בשטח כולל של כ- 450
מ"ר וגובה של כ- 8 מטר במתחם הצפוני
של המפעל . בכוונת המפעל להכשיר את המבנה החדש לטובת פתיחת קו ייצור נוסף
של "מעגלים מודפסים" על מנת לעמוד בעומס הדרישה. המבנה יהיה מבנה עצמאי
במובן זה שיכלול את כל הנדרש על מנת לקיים תנאי עבודה מלאים ללא תלות באזורים
אחרים במפעל ועל כן יהיה בעל המאפיינים הבאים:
א. הכניסה למבנה תהיה מצידו הצפוני של המבנה ותאפשר
כניסת עובדים וציוד בנפרד.
ב. המבנה
יכלול אולם ייצור נקי בשטח של כ- 300 מ"ר.
ג. המבנה
יכלול מלתחות המחולקות לגברים ולנשים
,בהמשכם מעבר מסדרון אל מבואה המכניסה אותם אל אולם הייצור.
ד. המבנה
יכלול מבואת הכנסת ציוד אל אולם הייצור מגובה בשני משרדים המקושרים אליו במסדרון.
ה. אולם
הייצור ,המלתחות וחדר הכנסת הציוד יהיו מסוג חדרים נקיים ברמות שיפורטו בהמשך.
החדר הנקי יבנה בתוך מבנה
תעשייתי קל בגובה 8 מ', הבנוי מקונסטרוקציות פלדה קיר בטון בגובה 1.2 מטר ופנלים
מבודדים מסוג סנדוויץ' פח ובידוד
פוליאוריטן בעובי 5 ס"מ , רצפת האולם היא רצפת בטון מוחלק וצבועה במערכת צבע
מתאימה לחדרים נקיים. המבנה כולל חלונות לתאורה בלבד בגובה 60 ס"מ ובמפלס 1.5 + מ'. במבנה תבנה קומת
גלריה טכנית בגובה 5.6 מטר מהקרקע ותעמוד בעומס בהתאם למפרט הציוד.
גובה המבנה מחולק : גובה אולם הייצור 3.30 מ'
גובה חלל החזרת אוויר
לאולם 2.00 מ'
גובה גלריה טכנית 2.50 מ'
המפעל כולל : חדר כניסה בשטח כ -
61 מ"ר.
מלתחה כ
- 40
מ"ר.
חדר הכנסת ציוד כ -
40 מ"ר.
מבואה לאולם ייצור כ -
9 מ"ר.
אולם
ייצור כ - 300 מ"ר.
סה"כ שטח המפעל כ – 450
מ"ר.
א. תנאי אקלים חיצוניים לתכנון מיזוג
האוויר באזור הקמת המפעל הם:
בקיץ : טמפ' c ◦ 31.5 DB =
c
◦26.5 WB =
טמפ' קיצונית c
◦42 DB =
c ◦19 WB =
בחורף : טמפ' c ◦3 DB =
c ◦0.5 WB =
טמפ' קיצונית c
◦ 1- DB =
ב. תנאי אקלים, ניקיון ולחץ סטטי
פנימיים באזורים הממוזגים הם :
אולם הייצור - טמפ' c ◦ 1 ± 22 DB =
לחות יחסית
5% ± 45 RH =
דרגת
ניקיון Class 10,000
המלתחה - טמפ'
c
◦ 1 ± 22 DB =
לחות
יחסית % 60 ≥RH
דרגת
ניקיון Class 100,000
חדר הכנסת הציוד - טמפ' c ◦ 1 ± 22 DB =
לחות יחסית
% 60 ≥RH
דרגת ניקיון 000Class 100,
חדר כניסה ומשרדים - טמפ' c ◦ 1 ± 22 DB = לחות
יחסית % 60 ≥ RH
דרגת ניקיוןNon Classified
פרקי
העבודה
1.
תיאור
הפרויקט
2.
מפרט
מיוחד
3.
דפי
ציוד
4.
כתב
כמויות
5.
תוכניות
6.
נספחים
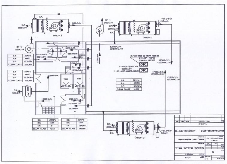
תיאור פתרון הבעיה ההנדסית.
אולם הייצור ימוזג ע"י 2
יחידות טיפול באוויר שתעבודנה בספיקה נומינלית של 17500 מקל"ש במצב רגיל ס"ה כ- 35000
מקל"ש ותספק אוויר מטופל לחלל שבין רצפת הגלריה הטכנית ובין התקרה התותבת של האולם
. בתקרת האולם יותקנו יחידות מסנני HEPA עם מאווררים F.F.U (Fan Filter Unit ) בכמות הנדרשת על פי סה"כ הספיקה הנדרשת לסחרור 68,500
מקל"ש על מנת לקיים את דרישת הניקיון באולם.
האוויר החוזר מהאולם יחזור דרך
אריחים מחוררים ברצפת האולם המוגבהת ודרך
מעבר אוויר מובנה שבין קיר המבנה החיצוני וקיר האולם הפנימי חזרה אל היחידות
שבקומת הגלריה. מבנה היחידות יותאם בגודלן כך שבמצב בו יחידה אחת מפסיקה עקב תקלה
מסוגלת כל יחידה לספק 70% מהנדרש על פי
חישובי העומס (24500 מקל"ש). בשתי היחידות יותקנו משני מהירות על מנועי
המפוחים על מנת לאפשר עבודה בספיקה חלקית כאשר שתי היחידות פועלות ביחד.
יחידה לטיפול באוויר נוספת
בתפוקה של 6100 מקל"ש תדאג לקיום תנאי הניקיון והמיזוג באזור השירותים ,
מבואת עובדים ואולם הכנסת הציוד. פיזור
האוויר יעשה ע"י תעלות שיוליכו את האוויר לאזורים השונים ומשם ע"י תעלות
גמישות אל מסנני ה – HEPA שבכל אזור מותקנות על תקרת החדרים. האוויר החוזר
מהחדרים יעבור דרך אריחים מחוררים ברצפת החדרים המוגבהת (למעט במלתחות) ומשם
בתעלות חזרה ליט"א.
מערכת ייצור מים קרים הכוללת 2 יחידות קירור מים
מאוחדות מקוררות אוויר (package chillers) בתפוקה של כ-
50 ט.ק. כ"א בהתאם לציוד מסחרי תעשייתי מהסוג הזה, וחימום באמצעות חשמל. היחידות תוצבנה בחצר המפעל סמוך לקיר הדרומי של אולם הייצור .
צנרת אספקת מים קרים תסחרר המים בין 3 יחידות טיפול באוויר ו 3 יחידות מפוח נחשון
שתוצבנה בקומת גלריה טכנית תיבנה לעמוד בעומס המתאים. טמפ' אספקת המים ליחידה תהיה 5.5◦C ובספיקה שתתאים לעלית טמפ' בשיעור 5.5◦C .
טמפ' אספקת מים זו תבטיח קירור ויבוש
האוויר במידה הנדרשת לקיום תנאי האקלים באזורי המפעל השונים.
תזרים האוויר העקרוני עבור המבנה :
