
מכונה
לאריזת חבילות בקבוקים בקרטון
חלק233 א'
תקציר
מנהליםשם המבצעת: לוסי מילר
שם המנחה: מר אופיר
יהב
מקום
הביצוע: מח' אריזה, מפעל "טבע" כ"ס
תאריך הגשה:
יוני 2002
נושא הפרוייקט: תכנון סוף
קו אריזה במפעל התרופות "טבע".
מטרת הפרוייקט:
במחלקת
האריזה קיימים קווי אריזה אוטומטיים, Sp6 ו-Sp7. תוצר הקו הוא חבילות של 12 בקבוקי PVC המכילים טבליות המאוגדים ב – Shrink (PE המתכווץ בחום). מטרת הפרוייקט הוא לתכנן מערכת לאריזת סוף קו אשר
יכלול את האלמנטים הבאים:
כל
זאת תוך פסילת חבילות לא תקינות, ושמירה על זרימה רציפה של המערכת.
מהות העבודה:
חלק א' – אפיון המערכת: חלק זה כלל חקירה לעומק של
המערכת וכלל לימוד תקנות "טבע", תקנות FDA
והגדרה מדוייקת של הפרמטרים הנדרשים מהמערכת (תכונות, תפוקה, אמינות, אחזקה
וכו'). כמו כן הוגדרו אילוצי המקום עבור תכנון המערכת אשר יהווה אלמנט חשוב בהמשך
התכנון בשל היותו מוגבל מאד.
חלק ב' – הכרת מערכות הקיימות בתעשיה: נעשתה
חקירה תאורטית ומעשית של הפתרונות השונים הקיימים והאפשריים עבור פתרון הבעיה,
תכונותיהם וביצועיהם וביקורים במפעלים שונים ולימוד הפתרונות הקיימים לבעיות דומות
לשלנו.
חלק ג'
- בחינת החלופות:
ביצעתי הגדרת קונספטים שונים עבור כל אלמנט במערכת, הערכתם והסקת מסקנות לגביהם.
עבור הערכת הפתרונות השונים, השתמשתי בשיטת APH, (Ananlitical Hierarchy Process). עיקר שיטה
זו היא באמצעות בניית טבלאות הערכה אשר
בעזרתה ניתן לקבל הצבעה על פתרונות מקומיים טובים. שיטה זו מסייעת לבחור בחלופה האופטימלית אשר
תמלא את מספר הדרישות הגדול ביותר של מפעל "טבע" ביחס למשקלם היחסי.
חלק ד' – התאמה ואינטגרציה עם פרוייקט 233 ב'
ובחירת חלופה סופית: בחלק זה נעשתה עבודה משותפת
עם פרוייקט 233 ב' שהוא פרוייקט משלים אשר מטפל בקרטונים (פתיחתם, סגירתם ושינועם
אל ומעמדת האריזה) , בשלב זה ביצענו בחירה ואופטימיזציה מחודשת לבחירת החלופה.
חלק ה' – תיכון ובחירת רכיבי המערכת:
חלק זה כלל בחירה ותיכון הרכיבים השונים בהתאם לפרמטרים כגון אמינות, כדאיות
כלכלית, סטנדרטיזציה , יכולת אינטגרציה עם המערכת הכוללת והתאמתם לדרישות אשר
הגדרנו בחלק א'.
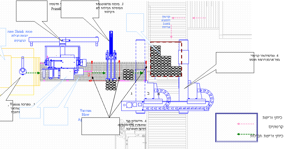
רכיבי המערכת:
1. מערכת זיהוי: מערכת Vision של חברת COGNEX ממשפחת In-Sight 2000 לאימות קיום כל 12 הבקבוקים והעלונים לראשם. המערכת כוללת חיישן ראיה בעלות נמוכה, מעבד עם I/O דיסקרטי, תאימות עם תצוגת VGA ועמידה בקו האריזה ללא צורך ב-PC.
2. תיווי החבילות: תיווי החבילות במרכז פאתם העליונה באמצעות מדבקה כאשר המערכת אותה בחרתי הינה מערכת Print & Apply של חברת Paragon האמריקאית. המערכת מבצעת הדפסה בחום, והתווית מושמת ללא מגע ישיר עם החבילה באמצעות לחץ אויר. לאחר ההדבקה תתבצע בדיקה להדבקה והדפסה תקינה של המדבקה באמצעות קורא בר-קוד של חברת .Keyence
3. תחנת פסילה:
עמדת פסילה כוללת בוכנה פניאומטית של חברת PHD,
אשר בקבלת אות ממערכת ה-Vision או מקורא הבר קוד, תגרוף את החבילה אל מחוץ לקו האריזה.
1.
שיקולי בחירה: חברת
PHD מוכרת בתחום הפנאומטיקה, והבוכנה שנבחרה מתאימה לכל הפרמטרים
הנדרשים
4. אריזת החבילות בקרטון: אריזת החבילות תתבצע באמצעות מניפולטור קרטזי בעל 4 דרגות חופש של חברת Samsung (3 צירי תנועה + סיבוב המניפולטור). בקצה המניפולטור יותאמו תפסניות ואקום בהתאם לתצורות האריזה השונות.
5. שינוע החבילות: שינוע החבילות יעשה באמצעות מערכת מסועים, כל מסועי המערכת בנויים בצורה מודולרית , בעלי שרשראות שולחן מחומרים פלסטיים המורכבים מחוליות גלילים אשר יתרונם בחיכוך מינימלי עם חבילות ה-Shrink, פסי שחיקה, גלגלי הנעה וגלגלי סרק תומכים. רכיבי המסועים נבחרו מקטלוג חברת Rexnord.
6. בקרת תנועה: זרימת המערכת מבוקרת באמצעות חיישנים פוטואלקטרים Diffuse Reflective של חברת Keyence המסומנים בשרטוט באדום. בכל אחד מהקווים החיישנים ישמשו כ:
א) חיישן נק' אפס: יזהה כי החבילה הגיע לנקודת אפס בקצה המסוע ומוכנה להיארז.
ב) חיישן אקומולציה: יעמוד במרחק חצי מטר מסוף מסוע החבילות ובזמן אקומולציה ישלח אות לבקר מכונת ה-Shrink להפסיק פעולתה. כאשר עומס החבילות ישתחרר, ישלח אות נוסף אל הבקר להמשך עבודה תקינה.
ג) שני חיישנים במערכת הפסילה: אשר תפקידם לזהות כי חבילה הגיעה אל עמדת הפסילה
ולאחר פעולת הבוכנה לוודא כי החבילה עברה
אל מיכל חבילות פסולות.
המערכת הכוללת: המערכת תוכננה עבור שני קוי אריזה Sp6 ו- Sp7. בשרטוט
מתואר קו Sp7 אולם המערכת זהה לשני הקווים.
![]()
![]()
![]()
(המספרים
מתאימים לסעיפים בעמוד הקודם – ראה רכיבי המערכת)

1. האילוץ העיקרי אשר הקשה על שלב התכנון היה שטח הריצפה הקטן אשר הוגדר ע"י "טבע" עבור המערכת של 10.8m x 5.40m = 58.32m2 כאשר :
·
מתוך כך ישנה נגיסה גדולה של
כ- 17 m2
עבור פרוייקט
2.33 ב'
· שטחי לוואי של מינימום 0.8m סביב מכונות עבור תחזוקת המערכת
· מעברים ברוחב 1m עבור תנועת מפעיל בקו האריזה
·
ישנו צורך במעבר בין שני
הקווים משני צידיהם
היה
צורך במציאת פתרון חכם אשר יתאים לדרישות השטח מבחינה תפעולית ותחזוקתית.
2. שלב האינטגרציה דרש התאמה מדוייקת בין תתי המערכות ולכן היה צורך להתפשר על פתרון הבעיה עבור התאמה אופטימלית זו.
השיקולים
בבחירת המערכת נבעו משלושה מקורות עיקריים:
· המערכת אינה מסוגלת לארוז את כל טווח הקרטונים אשר הוגדרו כדרישת לקוח.
· המערכת עומדת בתפוקות הנדרשות.
· המערכת עומדת בכל תקנות חברת "טבע" ותקנות FDA לאריזה.
· המערכת עומדת בכל הדרישות התפעוליות שהוגדרו.