
יוני 2002
מכונה לאריזת חבילות
בקבוקים בקרטון
חלק 233 א'
תקציר לספר הפרויקטים
הכין: נמרוד
דגני
מנחה: מר אופיר יהב
תקציר מנהלים
נושא הפרויקט
תכנון
אוטומציה לסוף קו אריזה במפעל הפרמצבטי "טבע" כפר סבא.
מטרת הפרויקט
תכנון מערכת
לפתיחה , שינוע , סימון, תיווי וסגירת קרטונים הנארזים עם חבילות של תרופות.
תכנון מערכת התבצע:
·
פתיחת קרטונים שטוחים וסגירת תחתיתם.
·
סימון כתובת על הדופן הצדית של הקרטונים.
·
תיווי פינתי על הדופן המובילה של הקרטונים והדופן הצדית הצמודה לה.
·
סגירת הקרטונים הארוזים.
·
שינוע הקרטונים בין תחנות העבודה.
·
בקרה ושליטה על תנועת הקרטונים תוך כדי שמירה על זרימת הקו.
מהות העבודה
1.
אפיון המערכת
·
הגדרת פעולות המערכת הדרושה (קצבים, גדלים, תפוקה, תפעול, צורת פעולות)
באמצעות:
−
איסוף
נתונים על המערכת הקיימת במפעל (מכונות בקו, גדלי קרטונים, שטח ריצפה פנוי)
−
חקירה
והבנת תקני המפעל ורגולציות של F.D.A.
2.
הצגה ובחינת החלופות הקיימות בתעשייה
·
הצגת אלטרנטיבות הקיימות בתעשיית אוטומציית סוף קוו (מעטפות ביצועים,
יתרונות וחסרונות) עבור כל מערכת.
·
בחינת החלופות לכל תת-מערכת לפי טבלאות השוואה (שיטת APH) וניתוח כדאיות לפי
דרישות בעלות משקל שונה.
·
קבלת סדר עדיפויות בחלופות לפי תת-מערכות.
3.
בחירת מרכיבי המערכת ותיכון המערכת
·
בחירת מערכות שנבחנו ועמדו בשלב
האינטגרציה.
·
חישובים (עומסים, גיאומטריים) של
התאמת המערכות לחלק האפיון.
·
התאמה בין המערכות שנבחרו בבחינת החלופות לבין עצמם.
·
תיאור והסברים על פעולת המערכת הסופית.
4.
אינטגרציה עם פרויקט 233
א' (אריזת החבילות לתוך הקרטון)
·
ביצוע עבודת תכנון משותפת עם פרויקט 233 א'
.
·
התאמה בין המערכות שנבחרו ובין המערכות והדרישות של פרויקט 233
א'.
·
ביצוע פעולות אינטגרציה תוך כדי פשרות, אילוצים ושינויים בבחירת המערכות
וביצוע איטרציות על מנת לקבל אופטימיזציה של המערכת כולה.
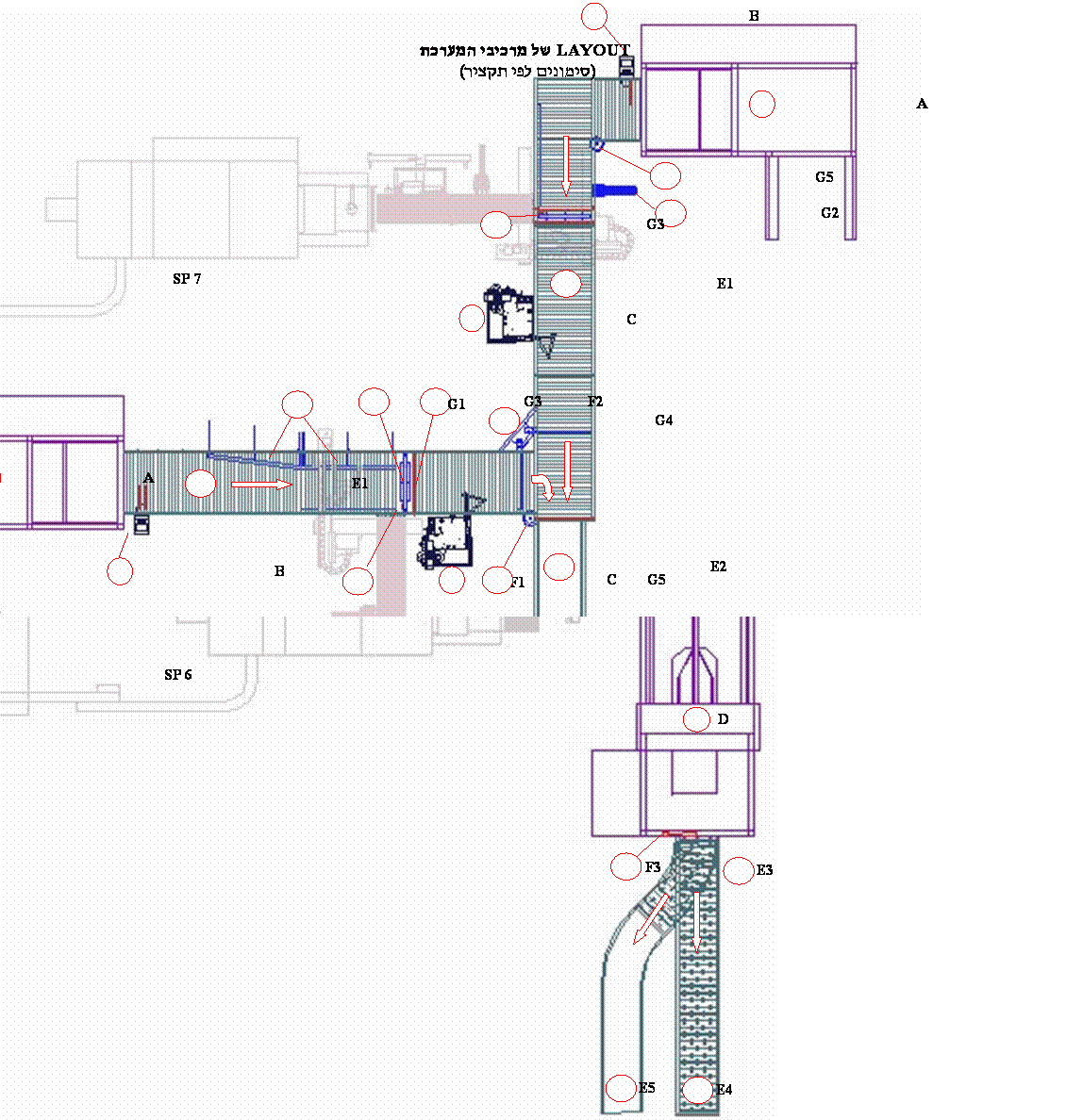
תיאור המערכת הנבחרת
(ראה שרטוט layout מצורף וממוספר בהתאם לחלק
זה)
דגם: COMBI 2EZ כמות:
2 יחידות
מכונה פנאומטית לפתיחת קרטונים שטוחים ממחסנית וסגירת התחתית באמצעות דבק-חם.
שיקולי בחירה: שטח ריצפה קטן יחסית , גובה עבודה גמיש ועבודה עם רוב
גדלי הקרטון.
דגם: LOVESHAW LD Microjet III כמות:
2 יחידות
מערכת הזרקת דיו המדפיסה ברזולוציה dot matrix.
שיקולי בחירה: איכות הדפסה
העומדת בדרישות הסימון, זיכרון לאחסון סימונים וכתובות שונות וביצוע ספירת קרטונים.מערכת
הזרקת הדיו זולה, קומפקטית ונוחה לתפעול ואחזקה.
דגם: PARAGON corner wrap labeler כמות: 2 יחידות
מערכת המבצעת הדפסה תרמית של תווית והדבקה והצמדה של התווית
סביב הפינה המובילה של הקרטון.
שיקולי בחירה: הדפסת סימונים
ובר-קודים ברזולוציה גבוהה, כדאיות כלכלית עקב פתרון כולל שמספקת החברה גם לפרויקט
233 א'.
דגם: LOVESHAW LD – 16R כמות: 1 יחידה
מכונה הסוגרת קרטונים בעלי גדלים שונים המגיעים
משני הקווים באמצעות סרט-דביק.
שיקולי בחירה: חוסכת בניית המשך שני קווים נפרדים ומכונה נפרדת
למרות עלותה ושטח ריצפה גדול.
E.
מסועים לשינוע
יצרן המסועים: HYTROL
1.
דגם 190-LR: - מסוע גלילים ממונע כמות : 4 יחידות
מסוע לשינוע קרטונים ריקים וארוזים בין תחנות העבודה.
שיקול בחירה: מאפשר פעולות ניתוב ובקרת
תנועה ללא צורך בעצירת המסועים.
2.
דגם: TR - מסוע רצועה ממונע כמות: 1 יחידה
מסוע להעלאת קרטונים ארוזים בשיפוע.
שיקול בחירה: המסוע בעל חיכוך גבוהה המאפשר עבודה בשיפועים.
3.
דגם:spur
curve switch 45° - מסוע גרביטציה עם גלגלים כמות:
1 יחידה
מסוע לברירת ניתוב המאפשר שינוע ימינה או ישר לפי סוג
הקרטון.נשלט פנאומטית. שיקול בחירה: הפרדה קלה בין מוצרים שונים ואינו
מצריך מנוע.
4.
דגם:3AW-18-12 - מסוע גרביטציה
ישר עם גלגלים כמות: 1 יחידה
מסוע לקומולציה של קרטונים ליד עמדת משטוח.
שיקול בחירה: מסוע פשוט (לא ממונע) וקצר.
5.
דגם: FX
200
- מסוע גרביטציה עם גלגלים, נייד ומתארך כמות: 1 יחידה
מסוע לקומולציה של
קרטונים ליד עמדת משטוח.
שיקול בחירה: מסוע פשוט (לא ממונע) הניתן לתיאום מיקום משטוח לפי נוחיות.
כל המסועים הם סטנדרטים ומיוצרים על ידי אותה חברה- דבר
זה מאפשר סטנדרטיזציה, אמינות וכדאיות כלכלית.
בקרת תנועה וחיישנים
1.
דגם: PZ-M31 – חיישן קרבה פוטואלקטרי כמות:
2 יחידות
ווידוא הימצאות קרטון בנקודת אריזה.
2.
דגם: PZ-M61 – חיישן החזר פוטואלקטרי כמות
: 4 יחידות
בקרת מעבר קרטונים לאורך הקו.
3.
דגם: BL-500H – קורא בר-קוד לייזר כמות : 1 יחידה
זיהוי ושליטה של מערכת ניתוב הקרטונים.
1.
דגם: GR-128 – מסילות ניתוב למסוע עם גלגלות כמות
: 4 יחידות
מסילות מכוונות לפי גודל קרטון ומנתבות אותו
לנקודת האריזה.
2.
דגם: PHD
SKB-74-380-GG בוכנה פנאומטית כמות
: 1 יחידה
בוכנה הדוחפת את הקרטון בקו העליון הצידה
,לאורך המעצור לנקודת האריזה.
3.
דגם: HYTROL pneumatic linear stop כמות : 2 יחידות
מעצורים פנאומטים לעצירת הקרטונים והחזקתם
בנקודת האריזה הניתנים להרמה והורדה ומורכבים על מסועי הגלילים הממונעים. המעצורים
נשלטים על ידי חיישני הבקרה המוזכרים לעיל.
4.
דגם: HYTROL
traffic cop כמות : 1 יחידה
"שוטר תנועה" משמש לשילוב התנועה בהשתלבות
הקווים.תפקידו לאפשר מעבר של קרטון אחד בצומת כל פעם ולמנוע היווצרות חסימה
בקווים.
5.
דגם: HYTROL
turning wheels כמות : 2
גלגלים הנמצאים על פינות צמתים של מסועי גלילים
מאונכים, ומאפשרים לקרטון ביצוע סיבוב של 90° .
התאמה
לדרישות הלקוח
§
מערכת סוף קו יעילה המנצלת שילוב שני קווי אריזה
לאופטימיזציה מקסימאלית של המקום הקיים.
§
מערכת נוחה לתפעול ותחזוקה עקב סטנדרטיזציה והתאמה בין
המערכות.
אילוצים
§
שטח רצפה במפעל מצומצם ולכן השפיע על כל ההיבטים של תכנון המערכת.
§
בחירת גדלים ונתונים סטנדרטים לפי
יצרנים.
מגבלות
§
הקו מותאם לעבודה עם רוב גדלי הקרטונים.
המלצות
§
ביצוע אופטימיזציה של אריזה – ביצוע
תכנון לעבודה עם מספר קרטונים קטן יותר, בטווח גדלים קטן יותר.
