
îàé 2002
Design and Construction of a
Solar Radiation Measuring Instrument.
The
Brief Management Summary
The Final Project

îðçä: ãø. àáøäí ãééï
The aim of this project is to design,
to construct and to calibrate the instrument for solar radiation measuring.
Measuring of the solar irradiance plays
an important role in meteorology, agriculture, thermal design of buildings and
especially in the field of the solar energy utilization.
Today's market offers very broad
spectrum of such instruments, based on different principles and constructed by
various manufacturers. However, the conducted survey shows, that the prices
vary from 400 USD for the simplest device up to 1.500 USD for the most
sophisticated (EPLAB pyrheliometer, which is taken as reference). Since these
prices can be significantly reduced, this project is concerned with the
building of an instrument for solar radiation measuring, with an adequate
precision and response time, but within low budget.
The constructed instrument will be used
by the Heat Transfer Laboratory in
|

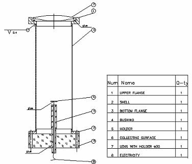
The thermo-couple is glued to the
collecting surface in order to measure its temperature. The thermo-couple can
be connected to the same temperature transmitter as the heat pipe solar
collector. In this option the transmitter will convert automatically the
measured temperature into the solar irradiation according to derived formula.
The additional option is to connect the pyrheliometer thermo-couple to the
mobile thermometer transmitter. In this case the obtained temperature must be
converted to the radiation flux by the means of the calibration chart or by
substitution to the characteristic formula. The cylinder is prepared from the
thin copper plate, covered with Nextel black coating from inside and polished
from the outside. This is done in order to make the surface diffusive, to
absorb all the radiation emitted by the collecting surface from the inside and
to emit all the absorbed heat by convection from the outside. On the top and
the bottom of the cylinder, two flanges are tin-soldered. On the upper flange
the glass lens is installed in such a way that its distance from the collecting
surface is equal to the lens focal length – focusing the incident radiation at
the center of a surface. From the bottom, the cylinder is closed by the teflon
bushing. Likewise, as an option, the side-lock through which the air is
evacuated, can be connected to the bushing. The pyrheliometer is mounted on two
degrees of freedom holder, in order to enable free movement of the instrument,
while directing it to the sun according to the azimuth and the altitude. The
instrument precise direction to the sun is ensured by the means of adjustment
of the upper flange shadow exactly as to cover the bottom one. After being
directed, the pyrheliometer is screwed firmly by the means of two bolts.
Pyrheliometer specifications.
|
Description |
Initial Requirement |
Specified |
|
|
Sensitivity [W/m2 oC]: |
N.A |
8.6112 |
|
|
Temperature dependence: |
N.A |
Independent |
|
|
Linearity: |
Linear |
Linear |
|
|
Response time [sec]: |
180 |
130 |
|
|
Error: |
< 5% |
<
5.1% |
|
|
Dimensions: |
Length [cm]: |
N.A |
11 |
|
|
Diameter [cm]: |
N.A |
4 |
|
Weight [gr]: |
N.A |
270 |
|
|
Total Price [USD] |
150 |
133 |
|
a.
The instrument
possesses the stabile behavior,
b.
The obtained
temperature can easily be converted to the solar radiation flux with the aid of
the characteristic formula or by Pyrheliometer Chart (Chart F in the Appendix).

Although
the realization of the project was successful, there are several aspects, which
may be improved.
The constructive parts of the pyrheliometer were
those found on stock of the workshop and were not exclusively manufactured for
this construction, since it was not part of the workshop schedule. Therefore,
the work was completed at the free time of the workers. For this reason, the
aesthetic appearance of the two degrees holder can be improved.